SCHÜCO ASS 50

Fotografije uz članak 3

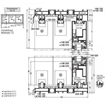
To je sistem profila sa prekinutim toplinskim mostom, osnovne ugradbene dubine dovratnika 120 mm, krila 50 mm.

Schücov sustav kontrole kvalitete dopušta ugradnju isključivo originalnog Schüco okova. S obzirom na tip okova razlikujemo samo klizne, te podizno-klizne sisteme. Profili su u oba slučaja isti, a brtvljenje se razlikuje utoliko što je kod kliznih sistema brtvljenje ostvareno pomoću tzv. četkica od Polyflora, a kod podizno-kliznih pomoću standardne EPDM brtve (2). Staklo je u krilo/štok učvršćeno pomoću unutarnje letvice s držačem (3), te zabrtvljeno EPDM brtvama s obje strane (4). Fiksno polje može biti izrađeno od za to namijenjenog profila (štoka), ili od profila krila, čime se postiže vizualna ujednačenost konstrukcije.

U sistem se mogu sistemski integrirati dodatne Al vodilice za rolete. Sistem omogućava kombinacije krila i fiksnih stijena sa vođenjem na 1, 2, ili 3 vodilice (šine). Moguće je izraditi i verziju sa 4 vodilice (8 polja), ali to ne spada među tipska rješenja.

Detalji učvršćenja – gornji, donji, bočni, sa drugim sistemom, sistemski su rješeni.

Partneri

Kontakt

DRVO-ALUMINIJ d.o.o.
Gospodarska 1
40328 Donja Dubrava
Direktor: Zvonimir Bašnec, ing.
Telefon: +385 / 40 / 688 - 105
Tel/fax:+385 / 40 / 688 - 452
e-mail: info->drvo-aluminij|hr
* - obavezna polja